
对于深圳人来说
提起#白石洲#这个名字并不陌生
不少在南山打拼的小伙伴
人生轨迹或多或少都曾和它有过交集

▲白石洲的文化墙,曾经是一道靓丽的风景线
白石洲曾见证了深圳的发展
也承载了不少年轻人的梦想
如今它正迎来新生
它的旧改令人期待
▲白石洲旧改宣传片。建议wifi下观看
而与白石洲旧改仅一路之隔
也有个旧改项目
它就是#深业世纪山谷花园#项目
如今它也传来了新进展
↓↓
近日,南山区城市更新和土地整备局发布公示深业世纪山谷花园(二期)的《建设工程规划许可证》及总平面图,称此项目已获批建设。


▲南山区城市更新和土地整备局官网截图
01
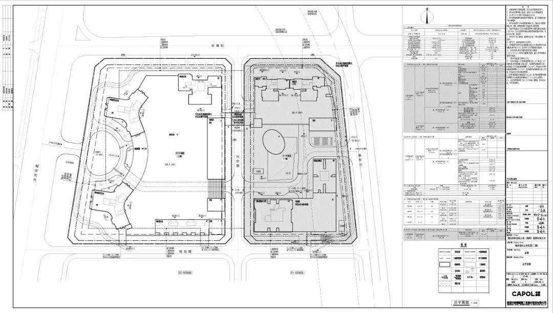
深业世纪山谷花园(二期)项目
地址:南山区沙河街道沙河街以西、沙河东路以东
规划:属于城市更新项目。通过改造,将完善片区城市道路系统,提高公共配套和商业服务水平,将片区建设成为集住宅、商业等功能为一体的综合社区。
按照规划,项目最大层数为地上69层,建筑最高高度为243.55米,设置192个机动车停车位。项目计容积率总建筑面积168652.16平方米,其中地上计规定容积率面积148300平方米,包括住宅108900平方米、商业3000平方米、商务公寓36400平方米;地上核增建筑面积20352.16平方米,包括架空绿化休闲、架空车库等场所面积。

▲深业世纪山谷花园(二期)的《建设工程规划许可证》

▲深业世纪山谷花园(二期)的总平面图
知多点
深业世纪山谷花园(一期)

▲深业世纪山谷一期效果图
据悉,深业世纪山谷花园分两期开发,一期于2017年获得建设许可证。
一期项目更多内容详见下图
↓↓


交通

距1号线白石洲站680米、西丽高铁枢纽5公里
项目距地铁1号线白石洲站约680米,步行约10分钟,从白石洲乘坐1站地铁到世界之窗站即可换乘2号线。另外项目距西丽高铁枢纽约5公里。


深业世纪山谷花园(一期)交通图示

家住南山的小伙伴怎么看?
你曾在这里的城中村打拼过吗?
让我们一起期待
一个全新的白石洲片区与我们见面~
图文:贺志煕、傅凤
来源:蛇口消息报
转载请注明以上信息
创建全国文明城市
南山在行动




往期精彩推荐
1、有力度更有温度!南山护航高校学子返校复课
2、明天起南山迎来“安全生产月”,多类丰富活动等您来参与!
3、大湾区天空唱响先行者之歌!南山原创歌曲《追寻》正式上线
本条微信部分图片来自于网络,如侵犯到您的权益,请及时联系我们删除。
