如何才能让老人在“家门口”幸福养老?
南山区社会福利中心三期项目
为大众提供了一个理想的养老样本
一起来看看它的最新进展吧!
南山区福利中心三期项目
外观设计曝光
据悉,珠海市晶艺玻璃工程有限公司中标深圳南山区福利中心三期工程外立面幕墙装饰项目,并于近日完成签约。

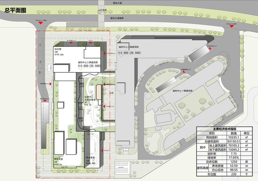
南山区社会福利中心三期项目是南山区倾力打造的社会养老、颐老标杆项目,项目位于南山区西丽街道留仙洞片区,北侧毗邻留仙大道,东侧为南山区社会福利中心一期和二期,南侧为西丽中兴通讯工业园,西侧为留仙公园,由南山区建筑工务署负责建设。项目占地面积约10335.14平方米,建筑高度99.5米,建筑总面积约9.37万平方米。计划交付时间为2025年。


▲福利中心主入口
该项目地上为一栋塔楼,两层地下室;塔楼建筑建筑高度为104.55m,功能主要为:社康、安宁疗护、老人居室、宿舍、餐厅、教学培训、休闲活动中心等。

▲总平面图

知多D
深圳市南山区社会福利中心
(区社会捐助接收管理站)

南山区社会福利中心于1996年成立,2001年5月正式开业,位于西丽留仙洞。福利中心一期占地面积8000平方米,建筑面积15000平方米,楼高7层,可提供301张床位。福利中心二期毗邻一期,于2015年12月底投入运营,占地面积7258.57㎡,总建筑面积26877.3㎡,建筑层数为十层(含一层架空层),可提供791张床位。为了响应国家养老改革政策,推进养老服务供给侧结构性改革,转变政府职能,现二期采用政府和社会资本合作(PPP)模式运营,新运营机构已于2019年8月1日正式进驻开展服务工作。

福利中心以全心全意为老人服务为宗旨,努力推进养老服务工作,配合区卫计部门积极探索“医养结合”模式,为老人提供膳食、日常护理、医疗、理疗、健身、康复、文娱活动等全方位、全天候的优质服务。
来源 | 蛇口消息报
南山政府在线 晶艺建筑艺术
编辑 | 喻梦婷 责编| 吴炳然
审核 | 王婷婷 李蔓铃